Bilocale in vendita

Madonna Di Campiglio, Piazza Brenta Alta
Informazioni in agenzia
2 locali 2 locali
67 Mq 67 Mq
1 bagno 1 bagno

Bilocale in vendita

Madonna Di Campiglio, Piazza Brenta Alta

Descrizione annuncio

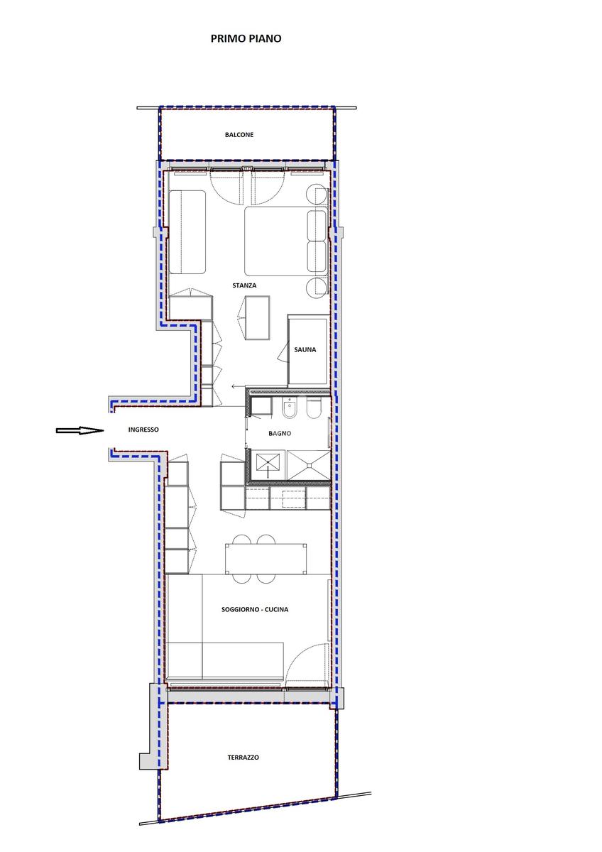
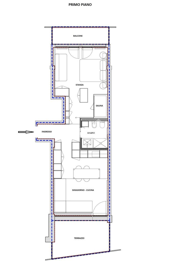
MADONNA DI CAMPIGLIO - Nel cuore di Madonna di Campiglio, adiacente ai servizi e agli impianti di risalita, questo appartamento ristrutturato a nuovo rappresenta una rara combinazione di comfort, eleganza e design esclusivo. Inserito in un condominio recentemente riqualificato con Superbonus 110%, l’immobile è rifinito con materiali di pregio e arredato su misura. Gli ambienti, luminosi e armoniosi, comprendono un soggiorno con angolo cottura, una camera da letto elegante con sauna e un bagno moderno. I due ampi balconi offrono piacevoli affacci sulle montagne e sul centro del paese, rendendo l’appartamento un luogo in cui vivere la magia della montagna in ogni stagione. Completano la proprietà un posto auto doppio coperto al Garage 3-Tre e una cantina privata. Questa è una residenza esclusiva, pensata per chi cerca il massimo della qualità e della raffinatezza in una delle località alpine più prestigiose.

Siamo nel cuore della Val Rendena, tra le Dolomiti di Brenta e i ghiacciai dell'Adamello e della Presanella. Madonna di Campiglio, località turistica preferita di tutto l’arco alpino, si trova a 1.550 metri d’altezza. Già nella seconda metà del ‘900 era un luogo di soggiorno della nobiltà e della ricca borghesia austriaca: tra i suoi ospiti dobbiamo citare la principessa Sissi e l’Imperatore Francesco Giuseppe d’Austria. Oggi Madonna di Campiglio è meta gettonatissima dagli sciatori e dagli amanti degli sport invernali. Madonna di Campiglio è molto frequentata anche d’estate: perfetta la sua posizione per chi ama le escursioni a piedi, il trekking, la mountain bike. Il vicino Parco Naturale Adamello Brenta offre ben 450 chilometri di sentieri di montagna percorribili a piedi.

Mostra tutto

Nelle vicinanze

Trasporto pubblico Trasporto pubblico
Madonna di Campiglio, Brenta Alta
Madonna di Campiglio, Brenta Alta
30 m
Trasporto pubblico
160 m
Ricariche auto elettriche Ricariche auto elettriche
Tesla Destination Charger
420 m
Enel X Charging Station
480 m
Farmacia Farmacia
Farmacia Bretta Dr. Giorgio & Co
80 m
Ospedali Ospedali
Alp Trauma Clinic
260 m
Supermercati Supermercati
Conad - Special Market
10 m
Famiglia Cooperativa
130 m
Supermercati
1,7 Km
Negozi Negozi
Gioielleria
160 m
IQOS Boutique
180 m
il Rustico Ballardini
360 m
Famiglia Cooperativa
840 m
Bar Bar
Bar Arnica
50 m
San Carlo
100 m
Bar Torre Brenta
190 m
Ristoranti Ristoranti
La Cantina di Suisse
90 m
Pizzeria Ristorante Belvedere
90 m
Ristorante Pizzeria Le Roi
120 m
La Stube di Franz Josef
130 m
Osteria del Circo
370 m
Mostra tutto

Caratteristiche

Rif.:
61175704
Piano:
1 di 4 (Piano ammezzato)
Posti auto:
2
Terrazzi:
2
Camere da letto:
1
Arredamento:
Completo
Mostra tutto
Prezzo Prezzo
Informazioni in agenzia
Spese annue Spese annue
€ 2.300
Proponi il tuo prezzoProponi il tuo prezzo

Classe Energetica

Questo immobile è esente da classe energetica
Anno di costruzione:
1973
Riscaldamento:
Centralizzato
Tipo impianto:
A radiatori
Tipo alimentazione:
Gasolio

Ti interessa visionare l'immobile?

Fissa un appuntamento  Fissa un appuntamento

Richiedi informazioni

Clicca su Leggi per aprire l'informativa
* Questi campi sono obbligatori
Affiliato
Studio Pinzolo E Madonna Di Campiglio D.I.
Via Cima Tosa, 13 38086 Pinzolo (TN)

Il nostro staff


  • Robert Ferrari
    Affiliato

  • Chiara Ferrari
    Responsabile
Via Cima Tosa, 13 38086 Pinzolo (TN)
Zona: Madonna di Campiglio
Mostra su mappa
Orari: dal lunedì al venerdì dalle 9:00 alle 12:30 e dalle 14:30 alle 19:30, il sabato dalle 9:00 alle 12:30 e dalle 14:30 alle 19:00
Affiliato
Studio Pinzolo E Madonna Di Campiglio D.I.
Via Cima Tosa, 13 38086 Pinzolo (TN)

2026 Tecnocasa Franchising S.p.A. - P. IVA 08365160152 - Via Monte Bianco 60/A 20089 Rozzano (MI). Ogni agenzia ha un proprio titolare ed è autonoma. Privacy policy | Policy utilizzo | Cookie policy